• Jean-François FORCE
  • Avenida Purisima 59
  • 03182 Torrevieja (Alicante)
  • 609670145
  • kontakt os
Avanceret Søgning
Villa i Montesinos, Los, la herrada, salg

Villa i Montesinos, Los, la herrada, salg

sags nr.: FOR-N9651

Pris: 460.000€

  • Overflade bygget 130 m²
  • Grund areal 251 m²
  • Soveværelser 4
  • Bad 3

Beskrivelse

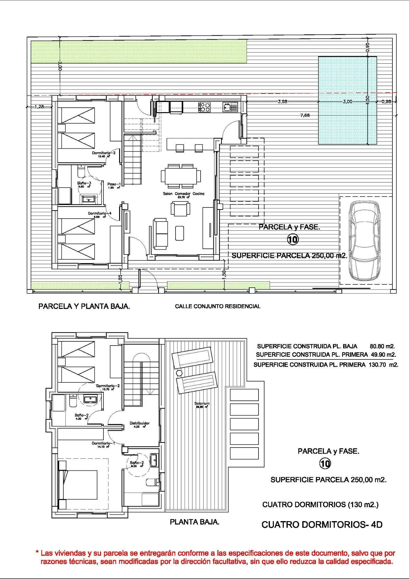
Moderne, nybyggede villaer i La Herrada Los Montesinos med privat swimmingpool Eksklusivt boligprojekt i fredelige omgivelser Dette eksklusive projekt med 16 moderne villaer ligger i det prestigefyldte boligområde La Herrada i Los Montesinos og tilbyder privatliv, komfort og en fremragende livskvalitet. La Herrada er kendt for sin fredelige boligatmosfære, sin nærhed til dagligdags faciliteter og sin privilegerede beliggenhed mellem de berømte saltsletter i Torrevieja og La Mata. Det er et ideelt sted for dem, der søger en afslappet og sund middelhavsstil i den sydlige del af Costa Blanca. Moderne design med optimerede indvendige rum Hver villa har 130 m² velindrettet boligareal fordelt på to etager, designet til at maksimere naturligt lys og funktionalitet. Ejendommene er bygget på grunde fra 250 m² og tilbyder rummelige udendørsarealer, der er perfekte til solbadning, underholdning eller afslapning ved den private pool. Komfortabel indretning over to etager Stueetagen har en åben stue med fuldt integreret køkken og direkte adgang til haven og poolområdet. Denne etage indeholder også to soveværelser, et fuldt udstyret badeværelse og et praktisk vaskerum. På første sal er der to rummelige soveværelser, hver med eget badeværelse, hvoraf det ene er en-suite. Begge soveværelser har adgang til en 28 m² åben privat terrasse. For dem, der ønsker endnu mere udendørs plads, er der et valgfrit solarium på taget tilgængeligt mod et ekstra gebyr. Højkvalitets finish og moderne funktioner Villaerne har kvalitetsfinish såsom badeværelsesmøbler, spejle, bruseskærme og gulvvarme i alle badeværelser. Der er forudinstallation til kanaliseret aircondition, en motoriseret indgangsport til køretøjer, privat parkering på grunden og lukket adgang til boligområdet via en privat intern vej. Fremragende beliggenhed tæt på vigtige faciliteter og attraktioner Guardamar og Torrevieja strande 9 km væk La Marquesa Golf, La Finca Golf og Vistabella Golf mindre end 5 km væk Alicante lufthavn 29 km væk Naturparker, saltsletter, cykelruter og vandrestier i nærheden Bo komfortabelt i hjertet af Costa Blanca Disse nybyggede villaer i Los Montesinos tilbyder den perfekte kombination af moderne komfort, naturlige omgivelser og fremragende tilgængelighed. Uanset om du er på udkig efter en permanent bolig eller et feriehus, tilbyder dette byggeri alt, hvad du har brug for for at nyde en fredelig og komfortabel middelhavslivsstil. Kontakt os i dag for at arrangere en fremvisning og sikre dig dit nye hjem i La Herrada.

Energi-certificering:

Map

udviklings detaljer

  • Type: Villa
  • Køb eller Salg: Salg
  • Provins: Alicante
  • By: Montesinos, Los
  • Område: la herrada
  • Soveværelser: 4
  • Bad: 3
  • Overflade bygget: 130 m²
  • Grund areal: 251 m²
  • Ejendomstype: Nybyggeri

Ekstra

  • Swimming Pool: Anden

Beskrivelse

Moderne, nybyggede villaer i La Herrada Los Montesinos med privat swimmingpool Eksklusivt boligprojekt i fredelige omgivelser Dette eksklusive projekt med 16 moderne villaer ligger i det prestigefyldte boligområde La Herrada i Los Montesinos og tilbyder privatliv, komfort og en fremragende livskvalitet. La Herrada er kendt for sin fredelige boligatmosfære, sin nærhed til dagligdags faciliteter og sin privilegerede beliggenhed mellem de berømte saltsletter i Torrevieja og La Mata. Det er et ideelt sted for dem, der søger en afslappet og sund middelhavsstil i den sydlige del af Costa Blanca. Moderne design med optimerede indvendige rum Hver villa har 130 m² velindrettet boligareal fordelt på to etager, designet til at maksimere naturligt lys og funktionalitet. Ejendommene er bygget på grunde fra 250 m² og tilbyder rummelige udendørsarealer, der er perfekte til solbadning, underholdning eller afslapning ved den private pool. Komfortabel indretning over to etager Stueetagen har en åben stue med fuldt integreret køkken og direkte adgang til haven og poolområdet. Denne etage indeholder også to soveværelser, et fuldt udstyret badeværelse og et praktisk vaskerum. På første sal er der to rummelige soveværelser, hver med eget badeværelse, hvoraf det ene er en-suite. Begge soveværelser har adgang til en 28 m² åben privat terrasse. For dem, der ønsker endnu mere udendørs plads, er der et valgfrit solarium på taget tilgængeligt mod et ekstra gebyr. Højkvalitets finish og moderne funktioner Villaerne har kvalitetsfinish såsom badeværelsesmøbler, spejle, bruseskærme og gulvvarme i alle badeværelser. Der er forudinstallation til kanaliseret aircondition, en motoriseret indgangsport til køretøjer, privat parkering på grunden og lukket adgang til boligområdet via en privat intern vej. Fremragende beliggenhed tæt på vigtige faciliteter og attraktioner Guardamar og Torrevieja strande 9 km væk La Marquesa Golf, La Finca Golf og Vistabella Golf mindre end 5 km væk Alicante lufthavn 29 km væk Naturparker, saltsletter, cykelruter og vandrestier i nærheden Bo komfortabelt i hjertet af Costa Blanca Disse nybyggede villaer i Los Montesinos tilbyder den perfekte kombination af moderne komfort, naturlige omgivelser og fremragende tilgængelighed. Uanset om du er på udkig efter en permanent bolig eller et feriehus, tilbyder dette byggeri alt, hvad du har brug for for at nyde en fredelig og komfortabel middelhavslivsstil. Kontakt os i dag for at arrangere en fremvisning og sikre dig dit nye hjem i La Herrada.

informations forespørgsels

For mere information om denne ejendom, udfyld nedenstående oplysninger.

du/de kan også kontakte:

609670145

mere

Energi-certificering

Energi-certificering:

lignende ejendomme

Salg VC01332ON

Montesinos, Los

Villa i Montesinos, Los

  • Soveværelser: 3
  • Bad: 2
  • Overflade bygget: 106 m²

332.900€

Salg VC01759ON

Montesinos, Los

Villa i Montesinos, Los

  • Soveværelser: 3
  • Bad: 3
  • Overflade bygget: 118 m²

358.000€

Salg VC01956ON

Montesinos, Los

Villa i Montesinos, Los

  • Soveværelser: 3
  • Bad: 2
  • Overflade bygget: 105 m²

349.000€

Salg FOR-N6403

Montesinos, Los

Villa i Montesinos, Los

NYBYGGERI AF VILLAER I LOS MONTESINOS Nybyggede villaer med 3 soveværelser og 3 badeværelser, åbent køkken...

  • Soveværelser: 3
  • Bad: 3
  • Overflade bygget: 116 m²

485.000€

  • Jean-François FORCE
  • Avenida Purisima 59
  • 03182 Torrevieja (Alicante)
  • 609670145
  • mere
Avenida Purisima 59
03182
Torrevieja (Alicante)
  • Jean-François FORCE
  • Avenida Purisima 59
  • 03182 Torrevieja (Alicante)
  • 609670145

© Jean-François FORCE 2026

Handelsbetingelser