• Jean-François FORCE
  • Avenida Purisima 59
  • 03182 Torrevieja (Alicante)
  • 609670145
  • Kontakt upplysningar
Detaljerad sökning
Villa i Rojales, ciudad quesada, till salu

Villa i Rojales, ciudad quesada, till salu

Referensnummer: FOR-N8758

Pris: 770000€

  • Byggyta 115 m²
  • Tomtarea 278 m²
  • Sovrum 3
  • Badrum 3

Beskrivning

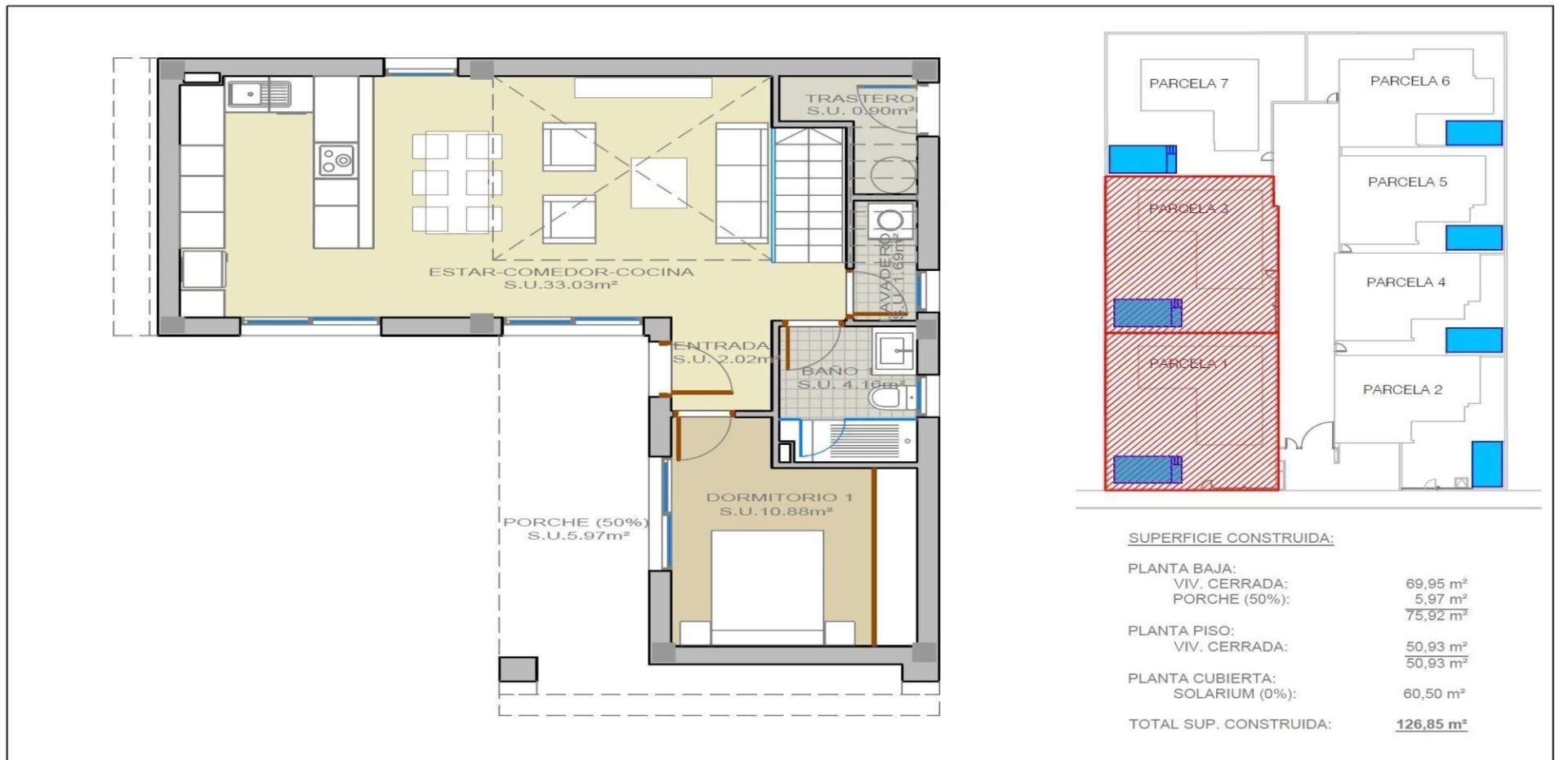
Exklusiva nybyggda villor i Ciudad Quesada - design, komfort och privilegierat läge Hem av hög kvalitet i en privilegierad miljö Upptäck dessa 7 fantastiska fristående villor i Ciudad Quesada - Rojales, ett av de mest eftertraktade områdena på Costa Blanca South. Med en modern och elegant design är dessa fastigheter utformade för dem som letar efter ett lyxigt hem, oavsett om det är permanent bostad eller fritidshus. Beläget i en privilegierad naturlig miljö, nära saltsjöarna La Mata och Torrevieja, har dessa villor ett unikt mikroklimat som garanterar en exceptionell livskvalitet året runt. Olika modeller att välja mellan Utvecklingen erbjuder två typer av villor, anpassade till olika behov och livsstilar: Tvåvåningsvillor med 3 sovrum med dubbelsäng och 3 kompletta badrum. Villor med en våning med 3 sovrum och 2 badrum. Alla fastigheter har: Privat takterrass, perfekt för att njuta av solen och panoramautsikten. Privat swimmingpool och anlagd trädgård, perfekt för avkoppling och underhållning. Privat parkeringsplats. Dessutom finns ett fullt utrustat visningshus där du kan uppskatta kvaliteten på materialen och de lyxiga ytbehandlingarna. High End-utrustning och finish Dessa villor har utformats för att säkerställa maximal komfort och energieffektivitet: Fullt utrustat kök med apparater ingår. Förinstallation av kanaliserad luftkonditionering. Stora öppna utrymmen och stora fönster som ger utmärkt naturligt ljus. Moderna ytbehandlingar och material av hög kvalitet i hela huset. Strategiskt läge och närliggande anslutningar Ciudad Quesada är en konsoliderad urbanisering med alla tjänster som behövs för det dagliga livet: stormarknader, restauranger, hälsocenter och fritidsområden. Dessutom ger dess läge snabb tillgång till de viktigaste intressanta platserna i området: Stränderna i Guardamar del Segura - 5 km. Närmaste stormarknad - 500 m. Torrevieja sjukhus - 6 km. Alicantes flygplats - 29 km. Upptäck ditt nya hem i Ciudad Quesada Om du letar efter en modern, rymlig och väl belägen villa är dessa fastigheter det perfekta valet. Missa inte detta tillfälle och kontakta oss idag för mer information eller för att ordna en visning av visningshuset.

Energideklaration:

Map

Detaljer

  • Typ av fastighet: Villa
  • Typ av transaktion: Till salu
  • Provins: Alicante
  • Stad: Rojales
  • Område: ciudad quesada
  • Sovrum: 3
  • Badrum: 3
  • Byggyta: 115 m²
  • Tomtarea: 278 m²
  • Byggnadstyp: Nyproduktion

Övrigt

  • Pool: Annan
  • Möblerad: Ja

Beskrivning

Exklusiva nybyggda villor i Ciudad Quesada - design, komfort och privilegierat läge Hem av hög kvalitet i en privilegierad miljö Upptäck dessa 7 fantastiska fristående villor i Ciudad Quesada - Rojales, ett av de mest eftertraktade områdena på Costa Blanca South. Med en modern och elegant design är dessa fastigheter utformade för dem som letar efter ett lyxigt hem, oavsett om det är permanent bostad eller fritidshus. Beläget i en privilegierad naturlig miljö, nära saltsjöarna La Mata och Torrevieja, har dessa villor ett unikt mikroklimat som garanterar en exceptionell livskvalitet året runt. Olika modeller att välja mellan Utvecklingen erbjuder två typer av villor, anpassade till olika behov och livsstilar: Tvåvåningsvillor med 3 sovrum med dubbelsäng och 3 kompletta badrum. Villor med en våning med 3 sovrum och 2 badrum. Alla fastigheter har: Privat takterrass, perfekt för att njuta av solen och panoramautsikten. Privat swimmingpool och anlagd trädgård, perfekt för avkoppling och underhållning. Privat parkeringsplats. Dessutom finns ett fullt utrustat visningshus där du kan uppskatta kvaliteten på materialen och de lyxiga ytbehandlingarna. High End-utrustning och finish Dessa villor har utformats för att säkerställa maximal komfort och energieffektivitet: Fullt utrustat kök med apparater ingår. Förinstallation av kanaliserad luftkonditionering. Stora öppna utrymmen och stora fönster som ger utmärkt naturligt ljus. Moderna ytbehandlingar och material av hög kvalitet i hela huset. Strategiskt läge och närliggande anslutningar Ciudad Quesada är en konsoliderad urbanisering med alla tjänster som behövs för det dagliga livet: stormarknader, restauranger, hälsocenter och fritidsområden. Dessutom ger dess läge snabb tillgång till de viktigaste intressanta platserna i området: Stränderna i Guardamar del Segura - 5 km. Närmaste stormarknad - 500 m. Torrevieja sjukhus - 6 km. Alicantes flygplats - 29 km. Upptäck ditt nya hem i Ciudad Quesada Om du letar efter en modern, rymlig och väl belägen villa är dessa fastigheter det perfekta valet. Missa inte detta tillfälle och kontakta oss idag för mer information eller för att ordna en visning av visningshuset.

Mera information

Vänligen fyll i detta formulär om ni önskar mer information, om ni har kommentarer eller föreslag till oss.

Your can also call:

609670145

Mera

Energideklaration

Energideklaration:

Liknande fastigheter

Till salu VC01146ON

Rojales

Villa i Rojales

Ciudad Quesada, Rojales, söder om Alicante Ny utvecklingsvilla på 135 kvm, förinstallation av...

  • Sovrum: 3
  • Badrum: 3
  • Byggyta: 135 m²

395000€

Såld
Till salu VCH0001ON

Rojales

Villa i Rojales

  • Sovrum: 3
  • Badrum: 3
  • Byggyta: 101 m²

477950€

Till salu VC01720ON

Rojales

Villa i Rojales

  • Sovrum: 3
  • Badrum: 3
  • Byggyta: 101 m²

477950€

Till salu FOR-N6300

Rojales

Villa i Rojales

NYBYGGDA VILLOR I ROJALES Nybyggnation av villor och radhus i Rojales. Vacker villa byggd på 2 våningar med...

  • Sovrum: 3
  • Badrum: 2
  • Byggyta: 102 m²

489900€

  • Jean-François FORCE
  • Avenida Purisima 59
  • 03182 Torrevieja (Alicante)
  • 609670145
  • Mera
Avenida Purisima 59
03182
Torrevieja (Alicante)
  • Jean-François FORCE
  • Avenida Purisima 59
  • 03182 Torrevieja (Alicante)
  • 609670145

© Jean-François FORCE 2026

Rättsliga förbehåll